
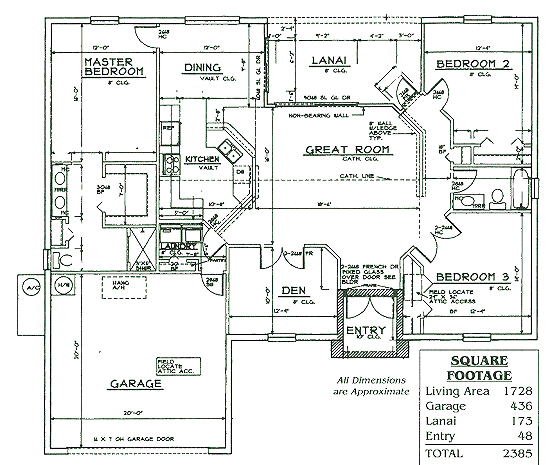
DIANE-2 MODEL

Home Page | Elevation View | Plan View | Amenities | Guest Book
O'Key Homes, Inc.
Quality Homes at Affordable Prices
Office: (239) 772-9090
Toll Free: (866) 526-9090
FAX: (239) 772-9586
E-mail: sales@okeyhomes.com